pynkocean.com
HOME
About
Contact
Disclaimer
Privacy
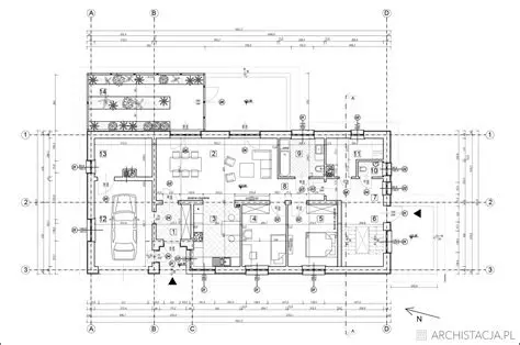
Zwymiarowanie rysunku architektonicznego
Oct 13, 2025
by pynkocean.com
57
views